Objektart
Adresse
Objektdaten
Informationen
Ausstattung
Details
Modernes Einfamilienhaus mit Rheinblick in Neuwied-Feldkirchen - massiv gebaut & sofort verfügbar
Sie möchten ein hochwertiges Haus kaufen in Neuwied? Dieses gepflegte, in Massivbauweise errichtete Einfamilienhaus aus dem Jahr 2007 bietet auf ca. 137 m² Wohnfläche einen modernen Wohnkomfort, der keine Wünsche offenlässt. Die Immobilie präsentiert sich in einem sehr guten Zustand und ist sofort bezugsbereit.
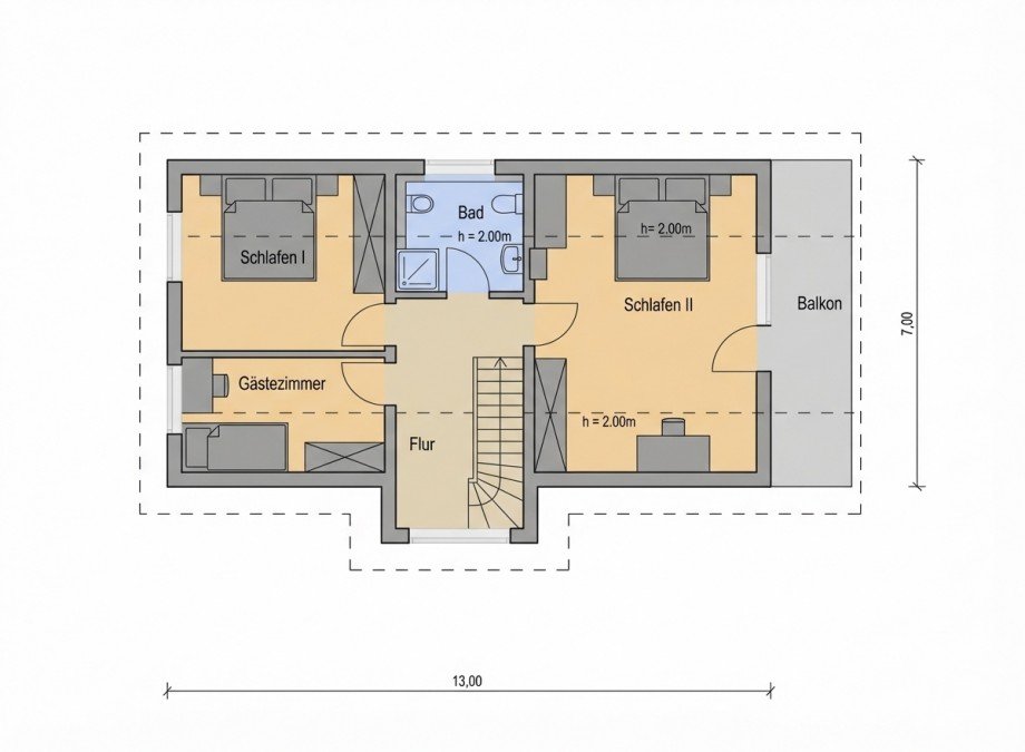
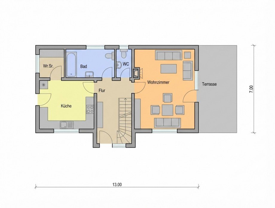
Das Einfamilienhaus überzeugt durch einen familienfreundlichen Grundriss mit insgesamt 5 großzügig geschnittenen Zimmern, darunter 3 helle Schlafzimmer, 2 moderne Tageslichtbäder sowie ein separater Raum der für ein Gäste-WC oder eine Garderobe genutzt werden kann. Der offen gestaltete Wohn- und Essbereich bildet das Herzstück des Hauses. Großflächige Fenster sorgen für viel Tageslicht und schaffen eine angenehme Wohnatmosphäre. Vom Wohnzimmer aus gelangen Sie direkt auf den überdachten Balkon, der mit einer Markise ausgestattet ist und einen herrlichen Blick auf den Rhein bietet - ein echtes Highlight. Zusätzlich besteht die Möglichkeit, einen Kamin anzuschließen, um an kühlen Tagen für eine besonders gemütliche Stimmung zu sorgen.
Die angrenzende Küche mit praktischem Vorratsraum ist funktional gestaltet und unterstützt effiziente Abläufe im Alltag. Weitere Ausstattungsmerkmale wie elektrische Rollläden, ein Kabel-/Sat-TV-Anschluss sowie eine leistungsstarke Öl-Zentralheizung der Marke Buderus unterstreichen den hohen technischen Standard der Immobilie.
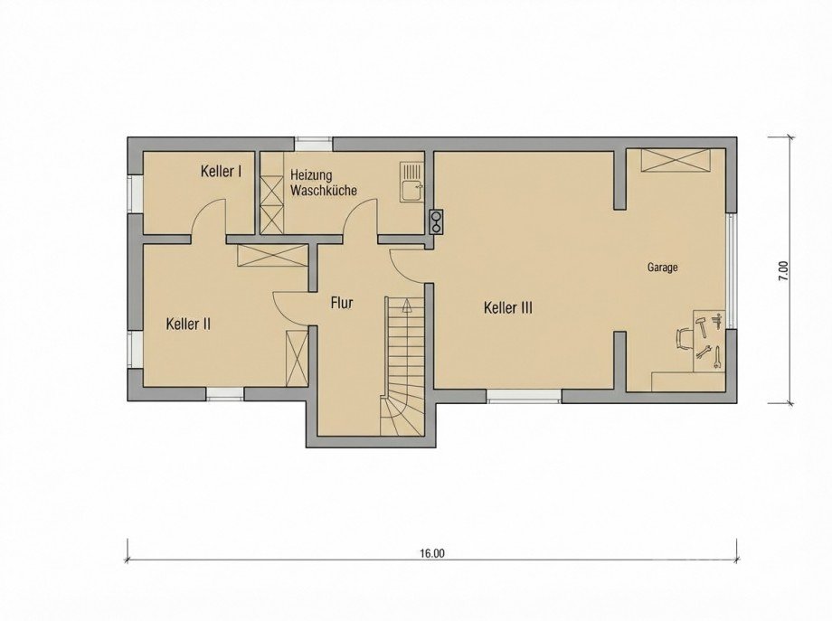
Der voll unterkellerte Bereich bietet viel Stauraum und beherbergt den Heizungsraum sowie den direkten Zugang zur Garage mit elektrischem Sektionaltor. Das ca. 436 m² große Grundstück punktet mit einer sonnigen Terrasse, einem kleinen Gartenbereich sowie einem weiteren Balkon im Obergeschoss, ebenfalls mit Markise. Ein zusätzlicher Außenstellplatz steht Ihnen direkt vor dem Haus zur Verfügung.
Dieses moderne Einfamilienhaus in Neuwied-Feldkirchen überzeugt durch seine massive Bauweise, energieeffiziente Ausstattung und eine Vielzahl durchdachter Ausstattungsdetails. Das im Jahr 2007 errichtete Haus befindet sich in einem sehr gepflegten, baujahrestypischen Zustand und bietet eine solide bauliche Substanz mit klarer architektonischer Linienführung.
Die Außenwände wurden massiv errichtet und mit 2-fach isolierverglasten Kunststofffenstern versehen - ideal für gute Wärme- und Schalldämmung. Eine leistungsstarke Öl-Zentralheizung der Marke Buderus sorgt für zuverlässige Wärmeversorgung im gesamten Haus. Ergänzt wird die Heiztechnik durch elektrische Rollläden, die sowohl Komfort als auch energetische Effizienz erhöhen. Zusätzlich besteht die Option zum Anschluss eines Kamins im Wohnbereich - ideal für eine gemütliche Atmosphäre an kühlen Tagen.
Die weiß lackierten Innentüren verleihen dem Interieur einen hellen und modernen Charakter. Eine hochwertige Holztreppe verbindet die Etagen auf elegante Weise. Die Bodenbeläge bestehen aus pflegeleichten Fliesen in den Funktionsbereichen sowie einem warm wirkenden Holzdekorbelag in Wohn- und Schlafräumen, der je nach Betrachtung an echtes Parkett oder edles Laminat erinnert - stilvoll, robust und wohnlich zugleich.
Die beiden Tageslichtbäder sind modern gestaltet: Im Erdgeschoss befindet sich ein praktisches Wannenbad, im Obergeschoss ein komfortables Duschbad mit zusätzlichem Oberlicht, das den Raum außergewöhnlich hell macht - ein echtes Highlight, das den Begriff Tageslichtbad mehr als verdient. Ein separates Gäste-WC kann optional errichtet werden. Die vorhandene Einbauküche mit Elektrogeräten ist direkt nutzbar und im Kaufpreis enthalten.
Abgerundet wird die Ausstattung durch zwei Balkone mit Markisen, einer davon mit wunderschönem Rheinblick, eine Garage mit elektrischem Sektionaltor, zwei Außenstellplätze sowie ein voll unterkellerter Bereich mit viel Stauraum und direktem Zugang zur Garage.
Dieses Einfamilienhaus befindet sich im beliebten Stadtteil Neuwied-Feldkirchen, einer der gefragtesten Wohnlagen der Region. Die Stadt Neuwied am Rhein liegt zentral zwischen Koblenz und Bonn und gehört zu den begehrten Wohnorten in Rheinland-Pfalz. Besonders Immobilien in Neuwied-Feldkirchen erfreuen sich großer Beliebtheit bei Familien, Berufspendlern und Naturliebhabern.
Feldkirchen ist bekannt für seine ruhige, naturnahe Wohnlage mit hervorragender Lebensqualität. Umgeben von grünen Wiesen, Feldern und Wäldern, genießen Sie hier eine ländliche Idylle bei gleichzeitig schneller Anbindung an die städtische Infrastruktur. Die Nähe zum Rhein, zu Weinbergen sowie zu zahlreichen Wander- und Radwegen macht den Stadtteil besonders attraktiv für Menschen, die Wohnen im Grünen mit urbaner Nähe verbinden möchten. Viele Eigentümer genießen hier Ruhe, Sicherheit und Nachbarschaftlichkeit.
Alle Einrichtungen des täglichen Bedarfs - wie Supermärkte, Ärzte, Apotheken, Bäckereien, Restaurants und Dienstleister - befinden sich in unmittelbarer Nähe. Kindergärten, Grundschulen und weiterführende Schulen sind schnell erreichbar, was Feldkirchen besonders familienfreundlich macht. In nur wenigen Fahrminuten gelangen Sie in die Neuwieder Innenstadt oder nach Linz am Rhein.
Die Verkehrsanbindung ist ideal: Über die B42 erreichen Sie die Städte Koblenz, Bonn, Linz, Bad Honnef oder Remagen schnell und bequem. Auch die Anbindung an den öffentlichen Nahverkehr ist durch gut ausgebaute Busverbindungen und nahegelegene Bahnhöfe in Neuwied oder Unkel sehr gut gelöst. Wer als Berufspendler ein Haus kaufen möchte, findet hier perfekte Voraussetzungen für Wohnen und Arbeiten in der Region Neuwied.
Auch das Freizeitangebot in Neuwied und Feldkirchen überzeugt: Sportvereine, Rheinpromenade, Schwimmbäder, Reiterhöfe, Tennisplätze, Golfanlagen sowie kulturelle Veranstaltungen und traditionelle Feste bieten ganzjährig Abwechslung und Lebensqualität - ideal für aktive Familien und Ruhesuchende.
Für das Grundstück ist im Baulastenverzeichnis eine Vereinigungsbaulast gemäß § 6 Abs. 3 der Landesbauordnung Rheinland-Pfalz eingetragen. Diese Baulast stellt sicher, dass die bestehende Bebauung baurechtlich zulässig ist. Des Weiteren ist in Abteilung II des Grundbuchs ein Kanalrecht zugunsten des angrenzenden Grundstücks vermerkt. Für die Nutzung der Immobilie ergeben sich hieraus keine Einschränkungen.
Alle Angaben sind ohne Gewähr und basieren ausschließlich auf Informationen, die uns von unserem Auftraggeber übermittelt wurden. Wir haben die Inhalte dieses Exposés mit größter Sorgfalt zusammengestellt und geprüft, übernehmen jedoch keine Gewähr für deren Vollständigkeit, Richtigkeit und Aktualität. Rechtsverbindlich sind ausschließlich die Inhalte des notariellen Kaufvertrags.
Grundrissgrafiken und Visualisierungen dienen ausschließlich der Veranschaulichung. Maßstabsgenauigkeit wird nicht garantiert; tatsächliche Gegebenheiten können abweichen. Bitte beachten Sie, dass bestimmte auf Fotos abgebildete Einrichtungsgegenstände oder Dekorationen nicht Bestandteil des Verkaufsangebots sind. Die Bilder in diesem Exposé dienen teilweise der Inspiration und stellen kein verbindliches Angebot dar.
Zwischenverkauf sowie Änderungen des Kaufpreises bleiben ausdrücklich vorbehalten. Sollte das von uns nachgewiesene Objekt bereits bekannt sein, teilen Sie uns dies bitte umgehend mit. Die unbefugte Weitergabe dieses Exposés an Dritte ohne unsere vorherige Zustimmung kann zu Courtage- oder Schadensersatzansprüchen führen.
Besichtigungen sind nur nach vorheriger Terminabsprache möglich und erfolgen ausschließlich über den benannten Ansprechpartner. Es gelten darüber hinaus die beigefügten allgemeinen Geschäftsbedingungen für die Rechtsbeziehung zwischen Ihnen und unserem Unternehmen.
Energieausweis (Bedarfsausweis)
128,06 kWh / (m²*a) Endenergiebedarf
128,06 kWh / (m²*a) Endenergiebedarf
128,06 kWh / (m²*a) Endenergiebedarf
Weitere Informationen
| Wesentlicher Energieträger | Öl |
| Energieausweis gültig bis | 2036-02-08 |
| Energieausweis Jahrgang | ab dem 1.5.2014 |
| Energieausweis Werteklasse | D |
| Energieausweis Baujahr | 2007 |
| Energieausweis Gebäudeart | Wohngebäude |
| Heizung | Zentralheizung |
| Befeuerung | Öl |
Ich bin damit einverstanden, dass mir Karten von Google angezeigt werden. Es gelten die Datenschutzbedingungen von Google (https://policies.google.com/privacy).
Ich bin einverstanden